11 mins 8 mins 5 mins
Booking Deposit: 2 weeks rent to confirm booking (Adjustable in rent).
Security Deposit: 4 weeks rent to be paid(Refundable at the end of tenancy)
Installment Plan: 2 Instalments or Full payment
Guarantor: International Guarantor required.
Mode of Payment: Credit/Debit Card or online payment.
If you need to cancel your booking with us for one of the reasons detailed below, all you need to do is email us no less than 14 days before your contract start date and we will cancel your booking and provide a full refund of any fees paid. We will provide flexibility to defer or cancel if you are impacted by any of the below reasons, all you need to do is provide supporting documentation:
• Visa Denied
If your visa application is rejected or the visa centre remains closed in your respective country.
• Flight Cancellation/Travel Ban
If your scheduled flight is cancelled and an alternate flight is not available, or if there is a travel ban preventing travel from your country of origin or in Australia preventing you from arrival.
• Intake Delay of University/Education provider
If the start date of your course has been postponed to a later date or semester, or the university does not offer face-to-face learning.
COVID-19 Cancellation Policy
They are allowing all residents to cancel their bookings and be released from all liability if a student informs the property before the 30/06/2020 that their plans for studying in London have been changed for reasons outside of their control.
They understand, the importance of flexible and stress-free bookings during the COVID-19 pandemic for students wanting to live at Urbanest in Semester 2, 2020. That is why they are providing more flexibility to give you so much more peace of mind when you reserve rooms at Urbanest for your students. It is simple if current Australian Government travel restrictions are extended beyond the commencement date of your contract, the commencement date will be adjusted to be in line with the Government travel restrictions being lifted. As a bonus, if you have a confirmed booking for Semester 2, 2020 and you are unable to arrive before 1 November 2020, Urbanest will defer your booking to Semester 1, 2021 at your Semester 2, 2020 rates**.
-All commencement dates will be adjusted to 14 days after the travel restrictions are lifted in Australia.
-Students that have a confirmed booking have an option to cancel their booking at any stage before the travel restrictions being lifted in Australia without incurring a penalty.
-Upon the travel restrictions being lifted in Australia affected students will have a further 5 days to cancel their booking without incurring a penalty.
-Students must inform Urbanest if the travel restrictions are not lifted in their country at the time when they have been lifted in Australia.
Regular Cancellation Policy
Before 1-week upfront rent payment is made: Customer can cancel with no liability.
From AU$359 / WEEK
Popular!
656 students saved this property to their wishlist
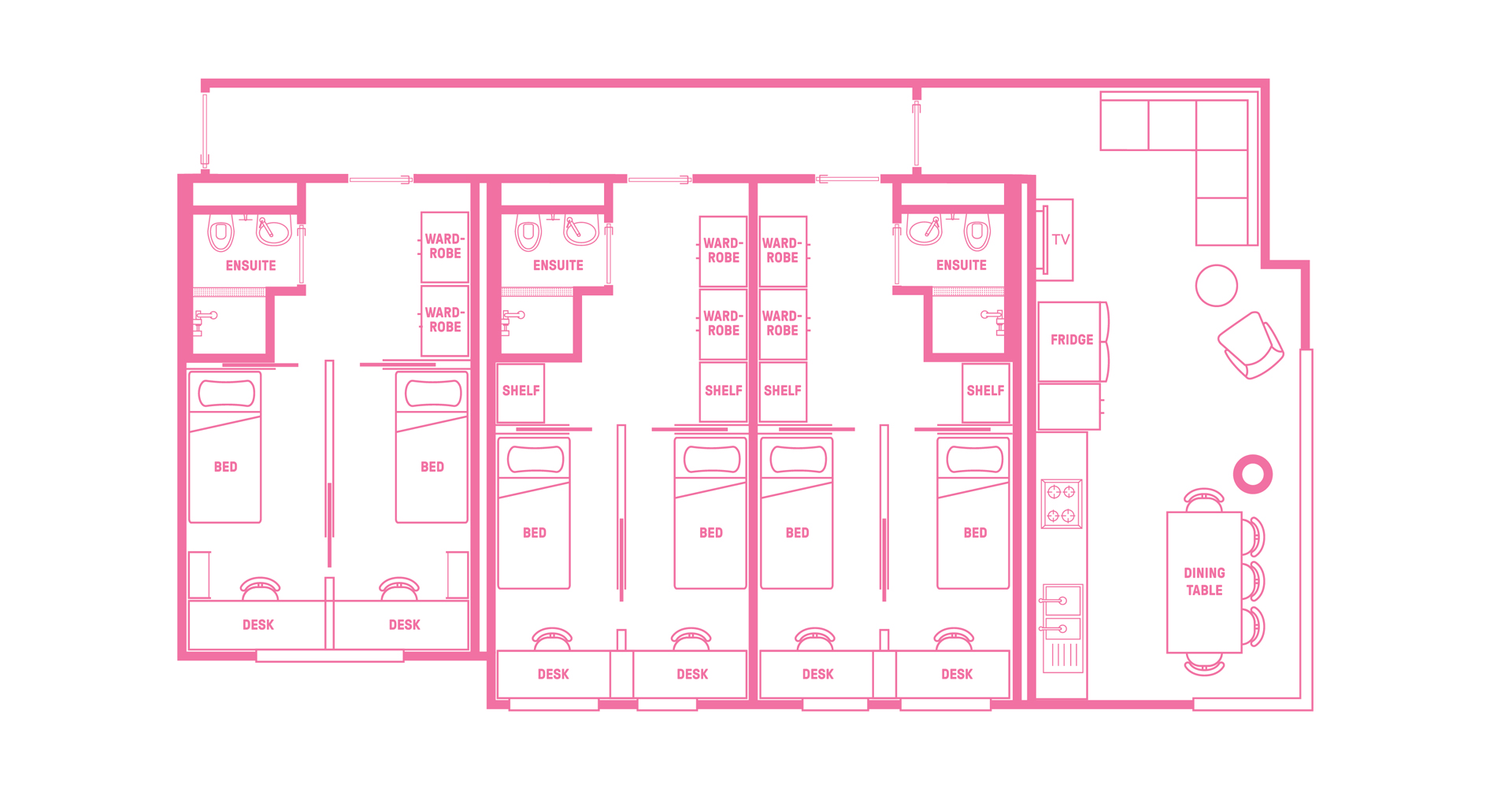
Urbanest Swanston Street is located in the heart of Melbourne and it features single ensuite apartments, twin ensuite apartments, as well as studio apartments. A typical room here includes an individual wardrobe, an en suite bathroom, a kitchen with different facilities, a personal desk, a lounge area, air-conditioning, and unlimited internet.
RMIT University and The University of Melbourne are located close to this property. The Melbourne Central train station and the Queensberry Street bus station are within walking distance. Some of the popularly visited cafes and restaurants near this location include Soul Cafe and Kaprica restaurant. The Royal Melbourne Hospital is the nearest hospital.
There are other communal amenities that include a laundry room, BBQ, an onsite gym, a bicycle storage facility, i Mac stations, and mailboxes.
599 Swanston St, Carlton VIC, Australia
+3
| Move - In | Duration | Rent | Deposit |
|---|---|---|---|
| 2022-06-06 | 51 WEEK | AU$359 / WEEK | AU$718 |
| 2022-06-06 | 25 WEEK | AU$389 / WEEK | AU$778 |
+3
| Move - In | Duration | Rent | Deposit |
|---|---|---|---|
| 2022-06-06 | 51 WEEK | AU$359 / WEEK | AU$718 |
| 2022-06-06 | 25 WEEK | AU$389 / WEEK | AU$778 |
+3
| Move - In | Duration | Rent | Deposit |
|---|---|---|---|
| 2022-06-06 | 51 WEEK | AU$369 / WEEK | AU$738 |
| 2022-06-06 | 25 WEEK | AU$399 / WEEK | AU$798 |
+3
| Move - In | Duration | Rent | Deposit |
|---|---|---|---|
| 2022-06-06 | 51 WEEK | AU$369 / WEEK | AU$738 |
| 2022-06-06 | 25 WEEK | AU$399 / WEEK | AU$798 |
+3
| Move - In | Duration | Rent | Deposit |
|---|---|---|---|
| 2022-06-06 | 51 WEEK | AU$459 / WEEK | AU$918 |
| 2022-06-06 | 25 WEEK | AU$489 / WEEK | AU$978 |
+3
| Move - In | Duration | Rent | Deposit |
|---|---|---|---|
| 2022-06-06 | 51 WEEK | AU$519 / WEEK | AU$1038 |
| 2022-06-06 | 25 WEEK | AU$559 / WEEK | AU$1118 |
+3
| Move - In | Duration | Rent | Deposit |
|---|---|---|---|
| 2022-06-06 | 51 WEEK | AU$449 / WEEK | AU$898 |
| 2022-06-06 | 25 WEEK | AU$479 / WEEK | AU$958 |
+3
| Move - In | Duration | Rent | Deposit |
|---|---|---|---|
| 2022-06-06 | 51 WEEK | AU$449 / WEEK | AU$898 |
| 2022-06-06 | 25 WEEK | AU$479 / WEEK | AU$958 |
+3
| Move - In | Duration | Rent | Deposit |
|---|---|---|---|
| 2022-06-06 | 51 WEEK | AU$449 / WEEK | AU$898 |
| 2022-06-06 | 25 WEEK | AU$479 / WEEK | AU$958 |
+3
| Move - In | Duration | Rent | Deposit |
|---|---|---|---|
| 2022-06-06 | 51 WEEK | AU$529 / WEEK | AU$1058 |
| 2022-06-06 | 25 WEEK | AU$559 / WEEK | AU$1118 |
+3
| Move - In | Duration | Rent | Deposit |
|---|---|---|---|
| 2022-06-06 | 51 WEEK | AU$629 / WEEK | AU$1258 |
| 2022-06-06 | 25 WEEK | AU$659 / WEEK | AU$1318 |
+3
| Move - In | Duration | Rent | Deposit |
|---|---|---|---|
| 2022-06-06 | 51 WEEK | AU$629 / WEEK | AU$1258 |
| 2022-06-06 | 37 WEEK | AU$659 / WEEK | AU$1318 |
No, for health and safety reasons no animals excluding guide, hearing or assistance dogs are permitted on the premises.
There is not car parking at Urbanest properties, however we have plenty of secure bike storage facilities.
Roommates are based on gender and age so you are not able to choose your roommate. If you have a friend also booking with Urbanest you can opt to place each other as a preferred roommate.